Fensterbänke nach Maß für innen & außen

Balkonaustrittshalter 4 mm stark

Balkonaustrittshalter 4 mm stark

47,60 € *

inkl. MwSt. zzgl. Versandkosten

Lieferzeit 5-7 Arbeitstage

Schenkelmaße :

Ihr Preis:
Preis:
Zwischensumme:
Gesamtsumme:
Gesamtgewicht:
  • FP20038
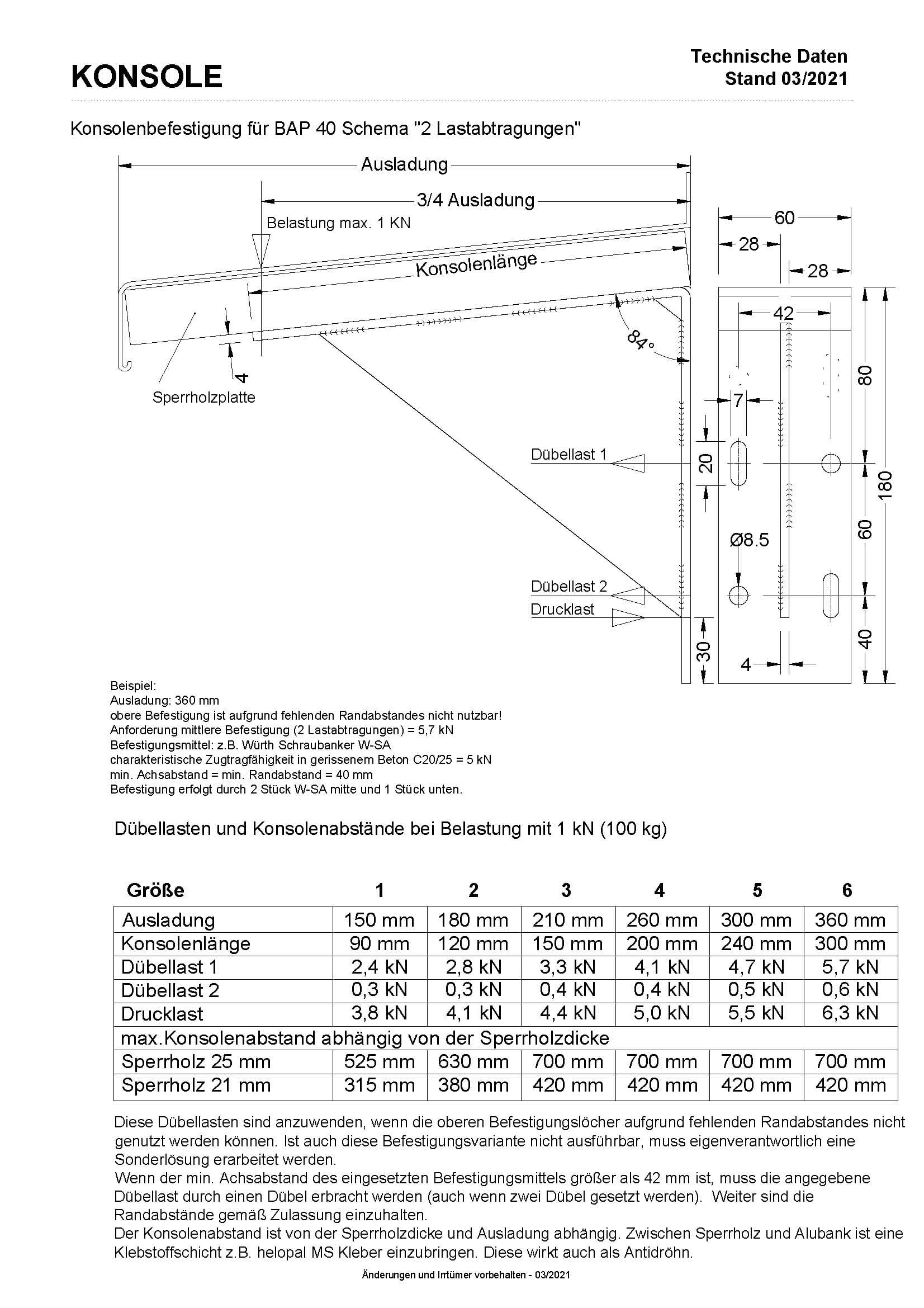
Konsole (z.B. Balkonaustritt)   4-mm-Aluminium-Glattblech 84-Grad-Kantung mit... mehr
Produktinformationen "Balkonaustrittshalter 4 mm stark"

Konsole (z.B. Balkonaustritt)

 

4-mm-Aluminium-Glattblech

84-Grad-Kantung mit eingeschweißtem „Knotenblech“ für Ausbildung „Trittfestigkeit“

Anschraubschenkel 180 mm mit 2 Langlöchern und 2 Bohrungen

Die Konsolenlänge ist bauseits zu planen.

Wählen Sie aus folgenden Größen:

Größe 1: Konsolenlänge 90 mm

Größe 2: Konsolenlänge 120 mm

Größe 3: Konsolenlänge 150 mm

Größe 4: Konsolenlänge 200 mm

Größe 5: Konsolenlänge 240 mm

Größe 6: Konsolenlänge 300 mm

Weiterführende Links zu "Balkonaustrittshalter 4 mm stark"
Zuletzt angesehen